Maison neuve à
Couzeix
(87270) Référence :
MN2312907_1
Prix du projet : Maison avec Terrain
prix 249 500 €
- 5 pièces
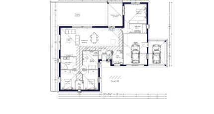
- 3 chambres
- Surface maison 105 m2
VENTE : maison de 5 pièces (105 m²) à Couzeix.
Votre futur maison vous attend à Couzeix, dans un cadre verdoyant à seulement 2 minutes de Limoges Nord.
Sur un terrain de 547 m2, entièrement viabilisé et exposé Sud-Ouest, nous vous proposons ce projet de construction moderne comprenant:
- Une belle pièce de vie lumineuse
- 3 chambres spacieuses
- et la possibilité d'ajouter une piscine , un garage selon vos envies.
Maison conforme à la RE2020 garantissant confort et une performance énergétique toute l'année.
Garanties techniques et financières.
Plans personnalisables selon vos besoins et votre mode de vie.
Contactez nous pour plus de renseignements ou pour une étude gratuite et personnalisée de votre future maison.
Marion NOBLET 06-46-71-91-04
Concrétisez vos projets immobiliers avec Maisons Millot Limoges.
Mentions légales
Terrain proposé par un partenaire foncier selon disponibilités et autorisation de publicité au prix de 58 000 €. Hors droit d'enregistrement et frais de notaire. Maison proposée, avec un contrat de construction de maison individuelle, dans le cadre de la loi du 19/12/1990, au prix de 191 500 € (Hors branchements et raccordements, papiers peints, peintures, revêtement de sol dans les chambres, qui sont chiffrés dans les travaux qui restent à charge du client. Tarif modifiable sans préavis). Étiquette énergie : A. Différents modèles disponibles pour ce terrain. Assurances et garanties du constructeur comprises (RC professionnelle, décennale, dommage ouvrage).Agence Maisons Millot de Limoges (87000)
- Téléphone :
- 05 55 01 78 78
- Adressse :
- 83 Rue Henri Giffard
87000 Limoges, France
