Maison neuve à
Couzeix
(87270) Référence :
SH2467349_1
Prix du projet : Maison avec Terrain
prix 219 000 €
- 4 pièces
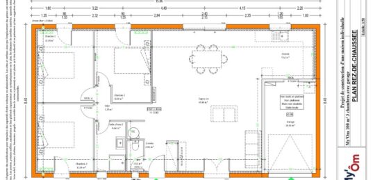
- 3 chambres
- Surface maison 90 m2
VENTE : maison T4 (90 m²) à Couzeix
CENTRE-VILLE - MAISON 4 PIÈCES NEUVE
À quelques kilomètres de Limoges, nous vous proposons cette maison de 4 pièces de plain-pied de 90 m² en vente, à Couzeix (87270), en centre-ville. Son intérieur comporte trois chambres, une cuisine et une salle de bains.
Le terrain du bien s'étend sur 1 122 m².
La maison est neuve.
Le Collège Maurice Genevoix, l'École Élémentaire Publique et l'École Maternelle Francoise Dolto sont implantés dans la commune. Côté transports, il y a quatre gares à moins de 10 minutes en voiture. L'autoroute A20 et les nationales N520 et N141 sont accessibles à moins de 7 km. On trouve cinq commerces et une boucherie-charcuterie dans les environs.
Son prix de vente est de 219 000 €.
N'hésitez pas à prendre contact avec Sopheak HANG (tél : 05-55-01-78-78) pour toute question sur la maison. Concrétisez vos projets immobiliers avec Maisons Millot Limoges.
Mentions légales
Terrain proposé par un partenaire foncier selon disponibilités et autorisation de publicité au prix de 79 000 €. Hors droit d'enregistrement et frais de notaire. Terrain + Maison proposés au prix de 219 000 € (Hors branchements et raccordements, papiers peints, peintures, revêtement de sol dans les chambres. Tarif modifiable sans préavis). Etiquette énergie : A. Différents modèles disponibles pour ce terrain. Assurances et garanties du constructeur (RC professionnelle, décennale, dommage ouvrage, garantie de remboursement de l'acompte, livraison à prix et délai convenu) : https://www.maisons-millot.com/mentions-legales/.Agence Maisons Millot de Limoges (87000)
- Téléphone :
- 05 55 01 78 78
- Adressse :
- 83 Rue Henri Giffard
87000 Limoges, France
