Maison neuve à
Limoges
(87000) Référence :
JFF.10.5.3_1
Prix du projet : Maison avec Terrain
prix 259 500 €
- 5 pièces
- 3 chambres
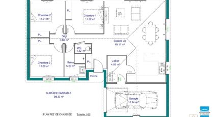
- Surface maison 93 m2
Limoges : maison de 5 pièces (93 m²) en vente
EMPLACEMENT PRIVILÉGIÉ - MAISON 5 PIÈCES NEUVE
Nous vous proposons cette maison de 5 pièces de 93 m² et de 615 m² de terrain avec vue sur espace vert en vente bénéficiant d'un emplacement d'exception dans Limoges (87100). Son intérieur comporte trois chambres, une cuisine et une salle de bains.
Cette maison est de plain-pied. Elle est neuve.
Cette maison se trouve dans un quartier prisé. Des écoles de tous types sont implantées à moins de 10 minutes en voiture, 15 crèches à moins de 10 minutes à pied, tout comme deux établissements du supérieur à moins de 10 minutes en voiture : l'Université de Limoges et l'Institut d'ingénierie informatique de Limoges. Niveau transports, on trouve six gares dans un rayon de 10 km. L'autoroute A20 et les nationales N141 et N520 sont accessibles à moins de 5 km. Il y a des tennis, des bassins de natation, des bibliothèques, un bowling, des commerces, des supermarchés, des boulangeries, des bureaux de poste et des épiceries à proximité.
Elle est à vendre pour la somme de 259 500 €.
N'hésitez pas à prendre contact avec notre agence (Jean-François FAYE : 06-88-23-33-48) pour tout renseignement sur la maison ou sur les démarches à suivre.
Mentions légales
Terrain proposé par un partenaire foncier selon disponibilités et autorisation de publicité au prix de 62 000 €. Hors droit d'enregistrement et frais de notaire. Maison proposée, avec un contrat de construction de maison individuelle, dans le cadre de la loi du 19/12/1990, au prix de 197 500 € (Hors branchements et raccordements, papiers peints, peintures, revêtement de sol dans les chambres, qui sont chiffrés dans les travaux qui restent à charge du client. Tarif modifiable sans préavis). Étiquette énergie : A. Différents modèles disponibles pour ce terrain. Assurances et garanties du constructeur comprises (RC professionnelle, décennale, dommage ouvrage).Agence Maisons Millot de Limoges (87000)
- Téléphone :
- 05 55 01 78 78
- Adressse :
- 83 Rue Henri Giffard
87000 Limoges, France
