Maison neuve à
Saint-Martin-Terressus
(87400) Référence :
JFF.10.5.6_1
Prix du projet : Maison avec Terrain
prix 256 000 €
- 6 pièces
- 3 chambres
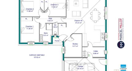
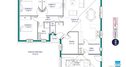
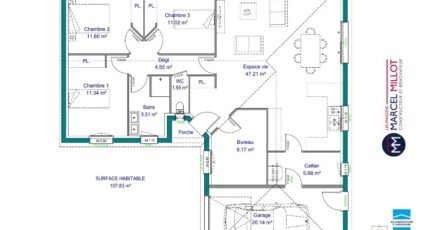
- Surface maison 107 m2
VENTE d'une maison de 6 pièces (107 m²) à Saint-Martin-Terressus
IDÉALEMENT SITUÉE - MAISON 6 PIÈCES NEUVE
À vendre : localisée à 22 km de Limoges, Maisons Millot Limoges vous présente cette maison de 6 pièces de 107 m² et de 4 440 m² de terrain avec vue sur bois idéalement située dans Saint-Martin-Terressus (87400).
Il s'agit d'une maison de plain-pied. Conçue de plain-pied, elle dispose de trois chambres, d'une cuisine et d'une salle de bains. Cette maison est neuve.
La maison se situe dans un secteur recherché. On y trouve une école primaire. Côté transports en commun, il y a cinq gares à moins de 10 minutes en voiture. L'autoroute A20 et la nationale N520 sont accessibles à moins de 17 km. On trouve deux tennis à proximité de la maison.
Son prix de vente est de 256 000 €.
Prenez contact avec Jean-François FAYE (06-88-23-33-48) pour obtenir de plus amples informations sur la maison ou sur les démarches à suivre. Maisons Millot Limoges vous accompagne dans tous vos projets immobiliers et à toutes les étapes de l'achat.
Mentions légales
Terrain proposé par un partenaire foncier selon disponibilités et autorisation de publicité au prix de 30 000 €. Hors droit d'enregistrement et frais de notaire. Maison proposée, avec un contrat de construction de maison individuelle, dans le cadre de la loi du 19/12/1990, au prix de 226 000 € (Hors branchements et raccordements, papiers peints, peintures, revêtement de sol dans les chambres, qui sont chiffrés dans les travaux qui restent à charge du client. Tarif modifiable sans préavis). Étiquette énergie : A. Différents modèles disponibles pour ce terrain. Assurances et garanties du constructeur comprises (RC professionnelle, décennale, dommage ouvrage).Agence Maisons Millot de Limoges (87000)
- Téléphone :
- 05 55 01 78 78
- Adressse :
- 83 Rue Henri Giffard
87000 Limoges, France
