Maison neuve à
Séreilhac
(87620) Référence :
SH2467222_1
Prix du projet : Maison avec Terrain
prix 159 000 €
- 4 pièces
- 3 chambres
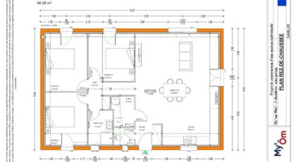
- Surface maison 90 m2
Séreilhac : maison de 4 pièces (90 m²) en vente
EMPLACEMENT PRIVILÉGIÉ - MAISON 4 PIÈCES NEUVE
À 14 km de Limoges, nous sommes ravis de vous proposer en vente, bénéficiant d'un emplacement privilégié dans Séreilhac (87620), cette maison de 4 pièces de plain-pied de 90 m² et de 831 m² de terrain. Conçue de plain-pied, elle compte trois chambres, une cuisine et une salle de bains.
La maison est neuve.
Cette maison se situe dans un quartier convoité. Trois établissements scolaires sont implantés à moins de 10 minutes en voiture, dont le Collège Jean Baptiste Camille Corot et le Collège Privé le Sauveur, tout comme sept structures d'accueil pour la petite enfance à moins de 10 minutes à pied. Niveau transports, il y a deux gares (Aixe-sur-Vienne et Verneuil-sur-Vienne) à moins de 10 minutes en voiture. On trouve des bibliothèques, des tennis, un bassin de natation, des commerces, des épiceries, deux bureaux de poste et des boucheries-charcuteries à quelques minutes à peine.
Elle est à vendre pour la somme de 159 000 €.
N'hésitez pas à prendre contact avec notre agence (HANG Sopheak : 05-55-01-78-78) pour plus de renseignements sur la maison, sur les démarches à suivre ou sur les modalités de vente. Maisons Millot Limoges est là pour vous accompagner dans tous vos projets immobiliers.
Mentions légales
Terrain proposé par un partenaire foncier selon disponibilités et autorisation de publicité au prix de 30 000 €. Hors droit d'enregistrement et frais de notaire. Terrain + Maison proposés au prix de 159 000 € (Hors branchements et raccordements, papiers peints, peintures, revêtement de sol dans les chambres. Tarif modifiable sans préavis). Etiquette énergie : A. Différents modèles disponibles pour ce terrain. Assurances et garanties du constructeur (RC professionnelle, décennale, dommage ouvrage, garantie de remboursement de l'acompte, livraison à prix et délai convenu) : https://www.maisons-millot.com/mentions-legales/.Agence Maisons Millot de Limoges (87000)
- Téléphone :
- 05 55 01 78 78
- Adressse :
- 83 Rue Henri Giffard
87000 Limoges, France
