Maison neuve à
Bourganeuf
(23400) Référence :
MN2361812
Prix du projet : Maison avec Terrain
prix 249 000 €
- 6 pièces
- 3 chambres
- Surface maison 120 m2
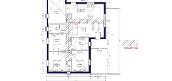
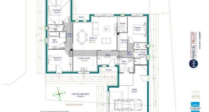
Maison de 6 pièces (120 m²) à vendre à Bourganeuf
MAISON 6 PIÈCES NEUVE
Notre agence Maisons Millot Limoges est ravie de vous présenter cette maison de 6 pièces de 120 m² avec vue sur espace vert en vente à Bourganeuf (23400).
Cette maison est de plain-pied. Conçue de plain-pied, elle dispose de trois chambres, d'une cuisine et de deux salles de bains. Cette maison est neuve.
Le terrain de la propriété est de 2 800 m².
Des écoles de tous types (de la maternelle au lycée) sont implantées à moins de 10 minutes à pied. Il y a un tennis, une bibliothèque, des commerces, trois boulangeries, un supermarché, une boucherie-charcuterie et une supérette à quelques minutes du bien. Le marché Place du champ de foire anime le quartier chaque mercredi matin.
Elle est proposée à l'achat pour 249 000 €.
Prenez contact avec Marion NOBLET (tél : 05-55-01-78-78) pour toute question sur cette maison, sur les démarches à suivre et sur les modalités de vente. Maisons Millot Limoges vous accompagne dans tous vos projets immobiliers et dans toutes vos démarches.
Mentions légales
Terrain proposé par un partenaire foncier selon disponibilités et autorisation de publicité au prix de €. Hors droit d'enregistrement et frais de notaire. Terrain + Maison proposés au prix de 249 000 € (Hors branchements et raccordements, papiers peints, peintures, revêtement de sol dans les chambres. Tarif modifiable sans préavis). Etiquette énergie : A. Différents modèles disponibles pour ce terrain. Assurances et garanties du constructeur (RC professionnelle, décennale, dommage ouvrage, garantie de remboursement de l'acompte, livraison à prix et délai convenu) : https://www.maisons-millot.com/mentions-legales/.Agence Maisons Millot de Limoges (87000)
- Téléphone :
- 05 55 01 78 78
- Adressse :
- 83 Rue Henri Giffard
87000 Limoges, France
