Maison neuve à
Le Palais-sur-Vienne
(87410) Référence :
MN2326388
Prix du projet : Maison avec Terrain
prix 329 600 €
- 5 pièces
- 3 chambres
- Surface maison 118 m2
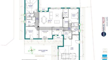
Maison neuve à bâtir - Le Palais-sur-Vienne
Venez découvrir ce projet de maison moderne de 118 m2, sur une parcelle de 805 m2.
Cette maison, lumineuse et fonctionnelle, offre un espace de vie convivial avec un beau séjour ouvert sur une terrasse, parfait pour profiter des beaux jours.
Elle comprend 3 chambres, dont une suite parentale avec salle d'eau et dressing, pour allier confort et intimité, un bureau et un garage double.
Réglementation RE 2020, maison construite sur un vide sanitaire.
Le prix de 329 600 € comprend : l'achat du terrain, les frais de notaire, la construction de la maison hors finitions intérieures, les différentes garanties, etc. )
Pour plus de renseignements :
Contacter Marion NOBLET Maison MILLOT
06 46 71 91 04.
Mentions légales
Terrain proposé par un partenaire foncier selon disponibilités et autorisation de publicité au prix de €. Hors droit d'enregistrement et frais de notaire. Maison proposée, avec un contrat de construction de maison individuelle, dans le cadre de la loi du 19/12/1990, au prix de 329 600 € (Hors branchements et raccordements, papiers peints, peintures, revêtement de sol dans les chambres, qui sont chiffrés dans les travaux qui restent à charge du client. Tarif modifiable sans préavis). Étiquette énergie : A. Différents modèles disponibles pour ce terrain. Assurances et garanties du constructeur comprises (RC professionnelle, décennale, dommage ouvrage).Agence Maisons Millot de Limoges (87000)
- Téléphone :
- 05 55 01 78 78
- Adressse :
- 83 Rue Henri Giffard
87000 Limoges, France
