Maison neuve à
Le Vigen
(87110) Référence :
JFF.3.11.1
Prix du projet : Maison avec Terrain
prix 293 000 €
- 6 pièces
- 3 chambres
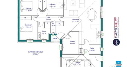
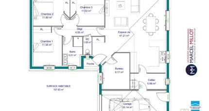
- Surface maison 107 m2
Le Vigen : maison de 6 pièces (107 m²) en vente
EMPLACEMENT PRIVILÉGIÉ - MAISON 6 PIÈCES NEUVE
À quelques kilomètres de Limoges, venez découvrir cette maison de 6 pièces de 107 m² et de 1 400 m² de terrain avec vue sur espace vert à vendre bénéficiant d'un emplacement d'exception dans Le Vigen (87110).
Cette maison est de plain-pied. Son intérieur comporte trois chambres, une cuisine et une salle de bains. La maison est neuve.
Cette maison se situe dans un secteur recherché. Il y a des écoles maternelles et élémentaires à moins de 10 minutes à pied et, comme l'École Élémentaire Publique. Niveau transports en commun, on trouve cinq gares à moins de 10 minutes en voiture. On trouve un accès à l'autoroute A20 à 4 km. Il y a une boulangerie, une épicerie et deux boucheries-charcuteries dans les environs.
Elle est à vendre pour la somme de 293 000 €.
Contactez Jean-François FAYE (06-88-23-33-48) pour plus de renseignements sur la maison. Maisons Millot Limoges vous accompagne dans tous vos projets immobiliers et à toutes les étapes de votre projet.
Mentions légales
Terrain proposé par un partenaire foncier selon disponibilités et autorisation de publicité au prix de €. Hors droit d'enregistrement et frais de notaire. Maison proposée, avec un contrat de construction de maison individuelle, dans le cadre de la loi du 19/12/1990, au prix de 293 000 € (Hors branchements et raccordements, papiers peints, peintures, revêtement de sol dans les chambres, qui sont chiffrés dans les travaux qui restent à charge du client. Tarif modifiable sans préavis). Étiquette énergie : A. Différents modèles disponibles pour ce terrain. Assurances et garanties du constructeur comprises (RC professionnelle, décennale, dommage ouvrage).Agence Maisons Millot de Limoges (87000)
- Téléphone :
- 05 55 01 78 78
- Adressse :
- 83 Rue Henri Giffard
87000 Limoges, France
