Maison neuve à
Moissannes
(87400) Référence :
MN2325023
Prix du projet : Maison avec Terrain
prix 199 500 €
- 4 pièces
- 3 chambres
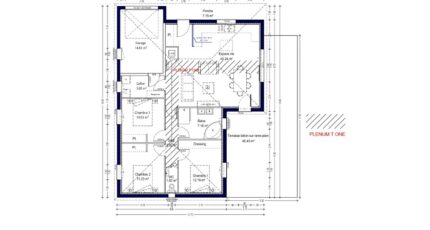
- Surface maison 90 m2
VENTE : maison de 4 pièces (90 m²) à Moissannes
À Moissannes, faites construire votre maison et définissez la en fonction de vos choix, mode de vie.
Nous vous proposons un terrain de 800 m2 et un projet de maison de plain pied de 90 m2 avec 3 chambres et un garage.
Réglementation RE 2020, maison construite sur un vide sanitaire.
Le prix de 199500 € comprend : l'achat du terrain, les frais de notaire, la construction de la maison hors finitions intérieures, les différentes garanties, etc. )
Pour plus de renseignements :
Contacter Maisons Millot 0555017878
Mentions légales
Terrain proposé par un partenaire foncier selon disponibilités et autorisation de publicité au prix de €. Hors droit d'enregistrement et frais de notaire. Terrain + Maison proposés au prix de 199 500 € (Hors branchements et raccordements, papiers peints, peintures, revêtement de sol dans les chambres. Tarif modifiable sans préavis). Etiquette énergie : A. Différents modèles disponibles pour ce terrain. Assurances et garanties du constructeur (RC professionnelle, décennale, dommage ouvrage, garantie de remboursement de l'acompte, livraison à prix et délai convenu) : https://www.maisons-millot.com/mentions-legales/.Agence Maisons Millot de Limoges (87000)
- Téléphone :
- 05 55 01 78 78
- Adressse :
- 83 Rue Henri Giffard
87000 Limoges, France
