Maison neuve à
Panazol
(87350) Référence :
MN2324178
Prix du projet : Maison avec Terrain
prix 216 500 €
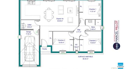
- 5 pièces
- 3 chambres
- Surface maison 90 m2
Panazol : maison de 5 pièces (90 m²) en vente
MAISON 5 PIÈCES NEUVE - PROCHE DE LIMOGES
Investisseurs!
Investisseurs!
La demande locative ne cesse d'augmenter, très peu de maison sont en location.
Faites construire votre bien maintenant et assurez vous un revenue stable pour votre retraite ou tout simplement pour placer votre argent !
Située sur une parcelle de 500 m2, emplacement privilégié proches des écoles. Elle dispose d'un spacieux salon-séjour avec cuisine ouverte , d'un espace nuit avec 3 chambres et d'un garage.
Maison conforme à la RE2020 garantissant confort et une performance énergétique toute l'année.
Rentabilité possible de 5,5 %
Garanties techniques et financières.
Contactez nous pour plus de renseignements ou pour une étude gratuite et personnalisée de votre future maison.
Marion NOBLET 06-46-71-91-04
Concrétisez vos projets immobiliers avec Maisons Millot Limoges.
Mentions légales
Terrain proposé par un partenaire foncier selon disponibilités et autorisation de publicité au prix de €. Hors droit d'enregistrement et frais de notaire. Maison proposée, avec un contrat de construction de maison individuelle, dans le cadre de la loi du 19/12/1990, au prix de 216 500 € (Hors branchements et raccordements, papiers peints, peintures, revêtement de sol dans les chambres, qui sont chiffrés dans les travaux qui restent à charge du client. Tarif modifiable sans préavis). Étiquette énergie : A. Différents modèles disponibles pour ce terrain. Assurances et garanties du constructeur comprises (RC professionnelle, décennale, dommage ouvrage).Agence Maisons Millot de Limoges (87000)
- Téléphone :
- 05 55 01 78 78
- Adressse :
- 83 Rue Henri Giffard
87000 Limoges, France
