Maison neuve à
Saint-Just-le-Martel
(87590) Référence :
MN2320170_1
Prix du projet : Maison avec Terrain
prix 299 000 €
- 5 pièces
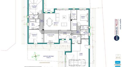
- 3 chambres
- Surface maison 118 m2
VENTE d'une maison de 5 pièces (118 m²) à Saint-Just-le-Martel
Votre futur maison vous attend à Saint Just-le-Martel, dans un cadre verdoyant à seulement 15 minutes du centre ville de Limoges.
Sur un terrain de 1200 m2 exposé Sud-Ouest, nous vous proposons ce projet de construction moderne comprenant:
- Une belle pièce de vie lumineuse
- 3 chambres dont une suite parentale.
- Un garage double, selon vos envies.
Maison conforme à la RE2020 garantissant confort et une performance énergétique toute l'année.
Garanties techniques et financières.
Projet de construction au prix de 299 000€
Plans personnalisables selon vos besoins et votre mode de vie.
Contactez nous pour plus de renseignements ou pour une étude gratuite et personnalisée de votre future maison.
Marion des maisons MILLOT au 06/46/71/91/04
Une maison commence par un rêve et se construit avec passion !
Mentions légales
Terrain proposé par un partenaire foncier selon disponibilités et autorisation de publicité au prix de 55 000 €. Hors droit d'enregistrement et frais de notaire. Maison proposée, avec un contrat de construction de maison individuelle, dans le cadre de la loi du 19/12/1990, au prix de 244 000 € (Hors branchements et raccordements, papiers peints, peintures, revêtement de sol dans les chambres, qui sont chiffrés dans les travaux qui restent à charge du client. Tarif modifiable sans préavis). Étiquette énergie : A. Différents modèles disponibles pour ce terrain. Assurances et garanties du constructeur comprises (RC professionnelle, décennale, dommage ouvrage).Agence Maisons Millot de Limoges (87000)
- Téléphone :
- 05 55 01 78 78
- Adressse :
- 83 Rue Henri Giffard
87000 Limoges, France
